
What does contemporary living look like in suburban US?
Given the opportunity to reshape the typical US suburbia, the design looks towards its site context to introduce lighting and family space.
The materials used makes reference to the building’s neighbours but with a modern interpretation.


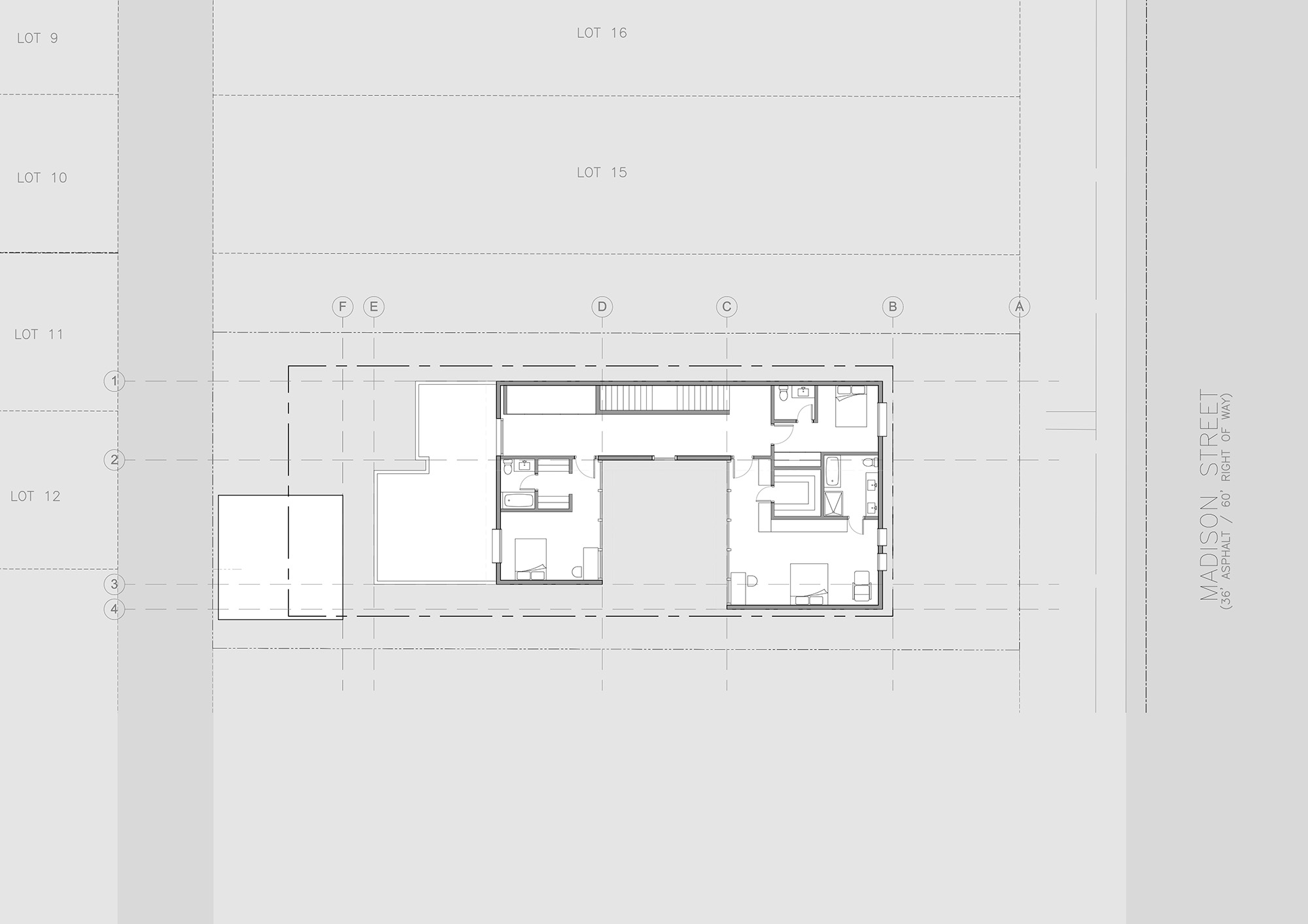
On a suburban lot in Denver, we proposed a house with a unique sunken courtyard which would open up the house to natural lighting and ventilation, creating a house suited for contemporary living but within the context of the surrounding neighbourhood.
Instead of the typical programmatic arrangement of functions oriented towards the front and back of the house, we proposed a courtyard in the centre, allowing every room in the house access to natural lighting throughout the day. The result is a light and airy design that connects each room to the outdoors directly.




















Location
Denver, US
Status
Unbuilt
Typology
Residential
Year
2019