
Can a neglected attic be transformed into a family oriented space?
For an attic space in a traditional Luxembourg house, we proposed a transformation of the neglected space into a place for the entire family.




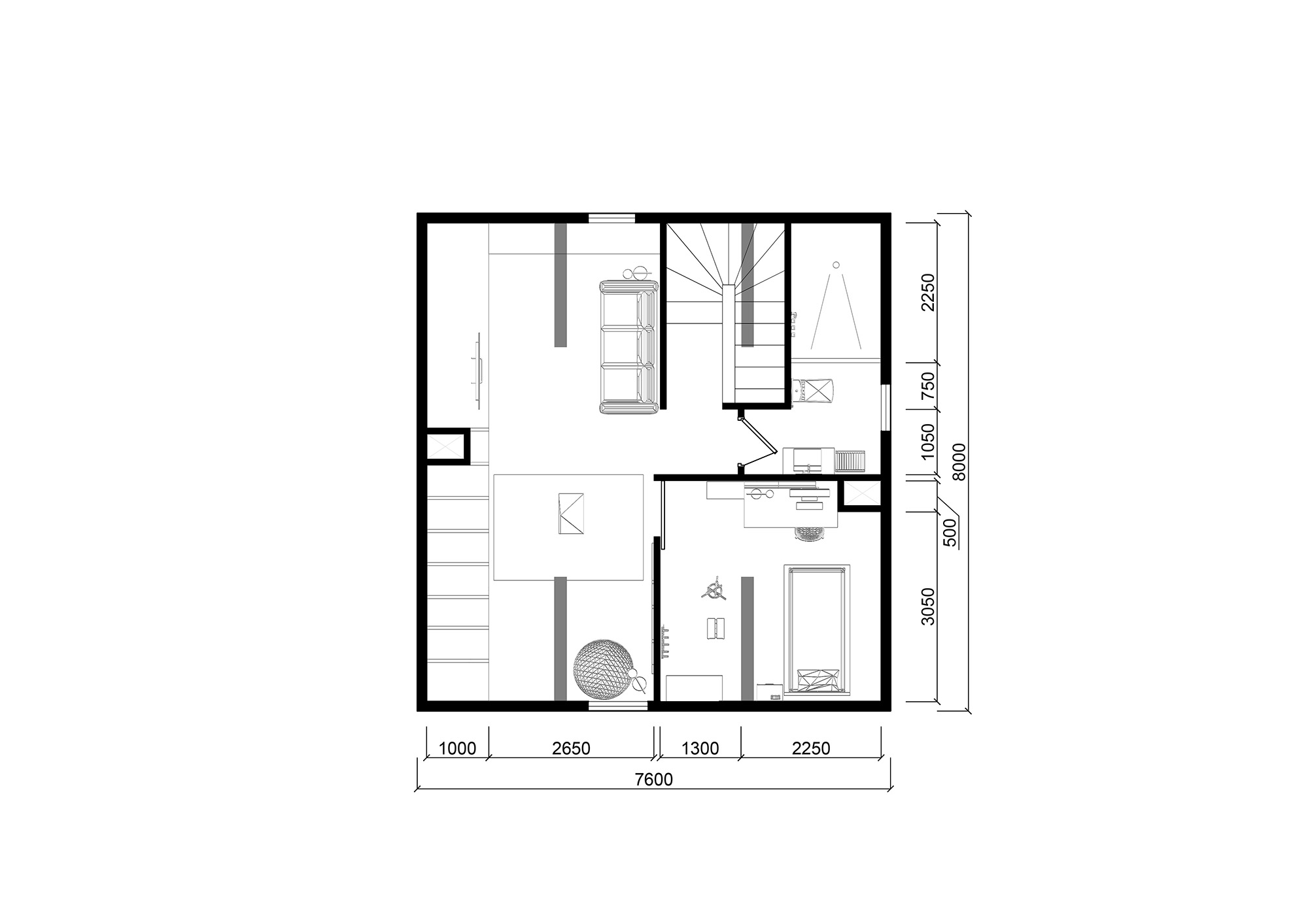
Taking inspiration from the exposed wooden beams which traverse the ceiling, the design reveals and celebrates the structure of the building to create a family oriented space. An opened area to one side allows the gathering of family and friends, with one half of the space dedicated to a children’s play area. A swing hangs from the beam of the building, further highlighting the structure of the building.
The other side of the building is used as a bedroom and bathroom. The original wooden planks on the ceiling are exposed to highlight the materiality of the space.





Location
Luxembourg City, Luxembourg
Status
Unbuilt
Typology
Interior, Residential
Year
2019